Enrollment applications now being accepted for new Flint Cultural Center Academy charter school

School officials have prepared plans for a lottery system in case demand outpaces the school’s initial capacity this fall for about 300 students in kindergarten through fifth grades. Located on the Flint Cultural Center campus, the 78,000-square-foot school will continue expanding over the next several years to eventually house 675 K-8 students.

Getting your Trinity Audio player ready...
Courtesy of THA Architects Engineers – Community leaders and dignitaries broke ground on Tuesday, June 26, 2018, on the Flint Cultural Center Academy, a charter school being built through a million donation from the Charles Stewart Mott Foundation. This image shows the east facade of
Courtesy of THA Architects Engineers – A view of the kiva that will connect the Flint Cultural Center Academy to the Flint Institute of Music and Sloan Museum.
Courtesy of THA Architects Engineers – An exterior view of the classrooms for the Flint Cultural Center Academy, which is now under construction.
Courtesy of THA Architects Engineers – The site plan for the Flint Cultural Center Academy, being built on Flint’s Cultural Center campus.
Courtesy of THA Architects Engineers – The floor plan for the second floor of the Flint Cultural Center Academy.
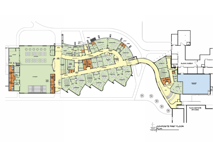
Courtesy of THA Architects Engineers – The floor plan for the first floor of the Flint Cultural Center Academy. The building is linked to the Flint Institute of Music.

FLINT, Michigan — Applications now are being accepted for the Flint Cultural Center Academy charter school, a new $35 million school being constructed by the Charles Stewart Mott Foundation.

School officials have prepared plans for a lottery system in case demand outpaces the school’s initial capacity for about 300 students in kindergarten through fifth grades. Located on the Flint Cultural Center campus, the 78,000-square-foot school is now under construction at the corner of Chavez Drive and Robert T. Longway Boulevard.

Families interested in enrolling children can find the enrollment application online at fccacademy.org/enroll-application

The school plans to accept applications through April 26, 2019, and randomly select which students will be enrolled using a lottery system. A waitlist also will be offered for those families not chosen in a lottery. If fewer students apply than available seats, all students who apply will be admitted and the enrollment will remain open, according to school plans. 

Local leaders broke ground on the new school on June 26. The two-story building is adjoined to the Flint Institute of Music and features 37 classrooms, a gymnasium, cafeteria and multipurpose classrooms. School planners have said students will spend at least 90 minutes a day studying at one of the Flint Cultural Center campus institutions. 

The school will continue to expand its enrollment, adding another grade level through 2022 and to eventually grow to 675 K-8 students. 

Related story: What you need to know about the Flint Cultural Center Academy 

Related story: Analysis: What the new, $35 million charter school means for Flint

As a charter school, the Flint Cultural Center Academy is a free public school. There is no tuition fee and enrollment is open to students throughout the state of Michigan, as required by state law.

Before conducting the lottery to enroll students, the school will publicly post the number of seats available in each grade. The selection process will be done during a meeting that is open to the public and will be conducted by an independent third party. Siblings, children of those working at the school and children of school board members “may receive special priority,” according to the school. 

Once enrolled, Flint Cultural Center Academy students will be able to bypass the lottery system to remain at the school in future years. 

The school’s board is made up of leaders from Flint Cultural Center institutions: Board president Todd Slisher of Sloan/Longway, vice president Rodney Lontine of the Flint Institute of Music, treasurer Kay Schwartz of the Flint Public Library, secretary Jarret Haynes of The Whiting, and board member John Henry of the Flint Institute of Arts, according to minutes of the board meetings. 

They tapped Eric Lieske to serve as the founding leader of the Flint Cultural Center Academy. Lieske served for 22 years in Davison Public Schools as a teacher, principal, and superintendent before announcing in September that he would be the founding chief executive officer at the academy. His job officially started Jan. 1.

The school also has started a Facebook page to share information.

Author
Marjory Raymer

Marjory Raymer served as the founding publisher and managing editor of Flintside. She launched Flintside in March 2017 with a coalition of support from Flint's leading advocates and helped it grow into the Flint area's largest nontraditional news outlet with an online readership of more than 180,000 users.

An award winning journalist with more more than 20 years experience, she started her career as a political reporter with short stints at the Ionia Sentinel Standard and Traverse City Record Eagle, before coming to Flint in 2000. She climbed through the ranks and became the first woman to serve as editor of The Flint Journal. She went on to serve as news director for MLive and all 10 of its newsrooms statewide. Prior to launching Flintside, Raymer served as head of marketing and media relations at the University of Michigan-Flint. She left Flintside in November 2019 to serve as director of communications for the City of Flint.

Our Partners

13257
13258
13259
13261
13262
13264

Don't miss out!

Everything Flint, in your inbox every week.

Close the CTA

Already a subscriber? Enter your email to hide this popup in the future.